|
Procesul de productie al profilelor pentru ferestre si usi "PROFILINK" se desfasoara sub un atent si strict control al
calitatii certificat ISO 9001:2000;
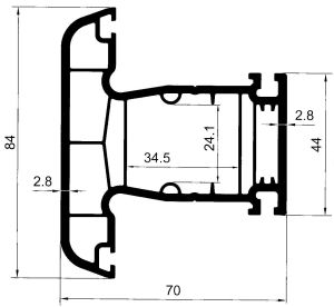
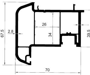
Peretii exteriori au o grosime de 3 mm, pentru a obtine ferestre si usi solide, cu suprafete plane ce nu necesita
revopsire in timp;
Ferestrele si usile obtinute din profilele "PROFILINK" pot fi folosite intr-un climat atmosferic cuprins intre
-500C si +700C;
Folosirea garniturilor din EPDM siliconat impiedica patrunderea apei si a prafului;
Pot fi folosite geamuri simple (4-6 mm), sau de tip termopan, duble (24 mm) sau triple (32 mm);
Profilele cu 3 sau 5 camere de izolare termica ce pot utiliza 2 sau 3 garnituri de etansare, reduc cu pana la 60%
pierderile de caldura si cu pana la 75% zgomotul extern;
Garantia acestor profile este de 10 ani, ele avand o durata minima de viata de 50 ani;
|
 |